Multilocale in vendita

Quarrata, Via Larga
€ 338.000
Prezzo aggiornato
11 locali 11 locali
300 Mq 300 Mq
2 bagni 2 bagni

Multilocale in vendita

Quarrata, Via Larga

Descrizione annuncio

Via larga - Quarrata

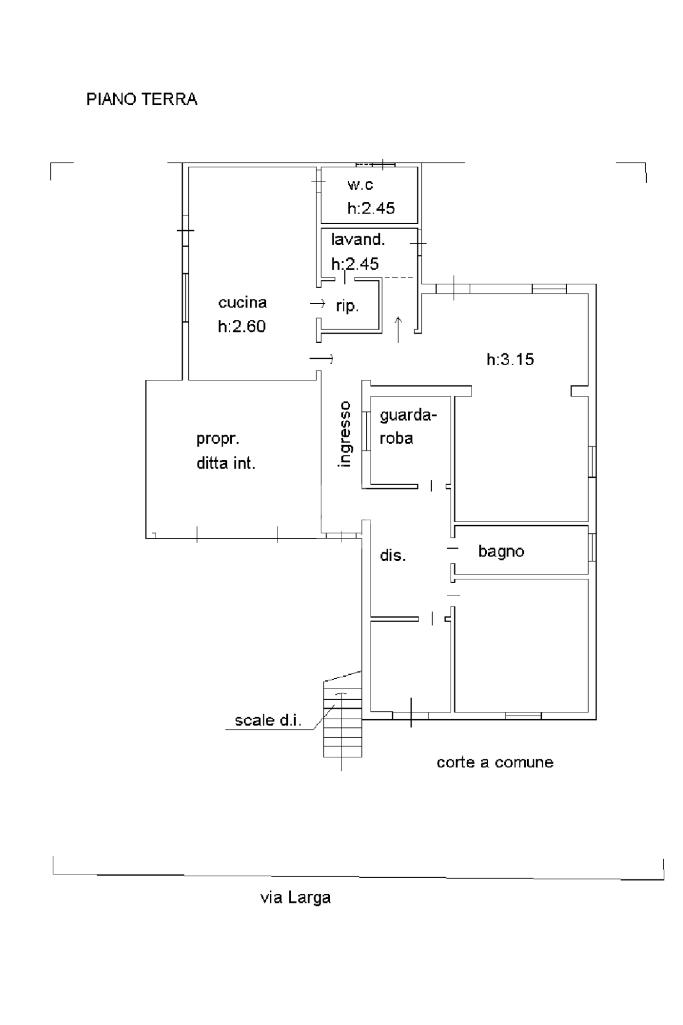
Situato in zona ben collegata sia a Quarrata centro che a Prato, proponiamo in vendita casa indipendente libera su quattro lati, già suddivisa in due unità abitative con propri ingressi, perfetta per chi desidera una soluzione bifamiliare o per due nuclei familiari che vogliono vivere vicini, mantenendo però la propria indipendenza.

L’immobile si presenta da ristrutturare, offrendo così la possibilità di essere personalizzato secondo le proprie esigenze e gusti.

La proprietà comprende due garage e un ampio giardino che circonda la casa su tutti i lati, ideale per chi ama gli spazi esterni e la privacy.

La posizione è particolarmente comoda: l’abitazione si trova infatti in una zona ben collegata sia al centro di Quarrata che a Prato, garantendo facilità di spostamento pur rimanendo in un contesto tranquillo e residenziale.

Una soluzione con grandi potenzialità, perfetta per chi cerca una casa spaziosa, indipendente e versatile, pronta a diventare un’accogliente dimora per due famiglie.

Mostra tutto

Nelle vicinanze

Trasporto pubblico Trasporto pubblico
Trasporto pubblico
2,4 Km
Scuole Scuole
Scuola Media Statale "Bonaccorso da Montemagno"
1,0 Km
Scuole
1,4 Km
Farmacia Farmacia
Farmacia Chilleri
640 m
Farmacia Pharmagroup sas
740 m
Farmacia Sarteschi
1,1 Km
Supermercati Supermercati
Coop
730 m
EuroSpin
740 m
Negozi Negozi
Panificio Giuntini
960 m
melanishop
2,9 Km
Bar Bar
Bar Grazia
1,1 Km
Ristoranti Ristoranti
Dal Taglia pizza
680 m
Ristoranti
980 m
Ristorante il faro
1,1 Km
da Giaomino
2,4 Km
Tenuta la querciola
2,7 Km
Mostra tutto

Caratteristiche

Rif.:
61136654
Piano:
Su più livelli di 3
Totale piani:
3
Box:
2
Posti auto:
2
Camere da letto:
6
Mostra tutto
Prezzo Prezzo
€ 338.000
Rata mutuo Rata mutuo
€ 1.575 / mese
Spese annue Spese annue
€ 0
Proponi il tuo prezzoProponi il tuo prezzo

Classe Energetica

G
G
G
G
G
G
G
G
G
EP globale non rinnovabile:
115.50 kW h/m² anno
EP globale rinnovabile:
115.50 kW h/m² anno
EP invernale del fabbricato:
EP estiva del fabbricato:
Anno di costruzione:
1967
Riscaldamento:
Autonomo
Tipo impianto:
A radiatori
Tipo alimentazione:
Metano

Prezzo ridotto di €1 (7%%)

Ti interessa visionare l'immobile?

Fissa un appuntamento  Fissa un appuntamento

Richiedi informazioni

Clicca su Leggi per aprire l'informativa
* Questi campi sono obbligatori

Calcola il tuo mutuo

Semplice e senza impegno
Anticipo

( % )
Mutuo

( % )

pochi semplici passi

inserisci i tuoi dati
Questionario completato
Grazie per aver richiesto un appuntamento senza impegno con un nostro Consulente del Credito e Assicurativo.

Hai inserito correttamente tutti i dati necessari e a breve riceverai una e-mail con un link da convalidare per inviare i tuoi dati.
Affiliato
Studio Quarrata Sas
Via Roma, 29 51039 Quarrata (PT)

Il nostro staff


  • Giuseppe Santoro
    Affiliato

  • Maria Carmen Alessia Accorinti
    Collaboratrice

  • Rosaria Cimmino
    Coordinatrice

  • Aldi Gjetdocaj
    Collaboratore

  • Chaymae Touil
    Coordinatrice
Via Roma, 29 51039 Quarrata (PT)
Zona: Quarrata
Mostra su mappa
Orari: 09:00 - 13:00 / 15:00 - 20:00
Affiliato
Studio Quarrata Sas
Via Roma, 29 51039 Quarrata (PT)

2025 Tecnocasa Franchising S.p.A. - P. IVA 08365160152 - Via Monte Bianco 60/A 20089 Rozzano (MI). Ogni agenzia ha un proprio titolare ed è autonoma. Privacy policy | Policy utilizzo | Cookie policy