Trilocale in vendita

Quarrata, Via della Costaglia - La Costaglia
€ 188.000
Prezzo aggiornato
3 locali 3 locali
80 Mq 80 Mq
1 bagno 1 bagno

Trilocale in vendita

Quarrata, Via della Costaglia - La Costaglia

Descrizione annuncio

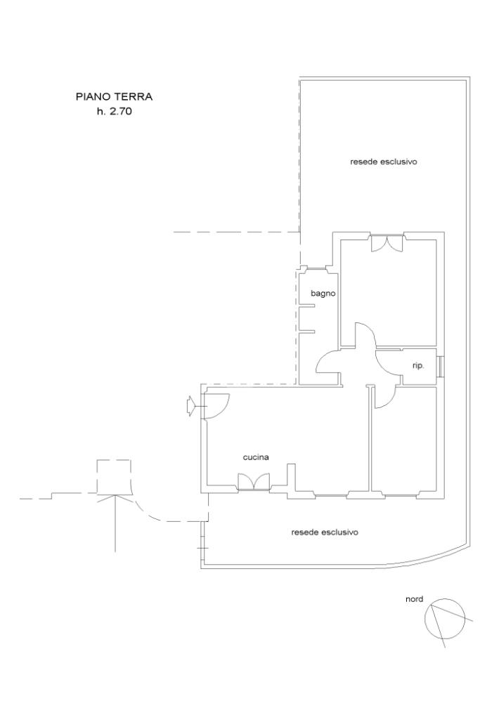
Proponiamo in vendita trilocale al piano terra situato in posizione strategica, ben collegata sia a Quarrata che a Prato, inserito in contesto tranquillo, libero su tre lati e dotato di resede esclusivo.
L’ingresso si apre sulla zona giorno, composta da sala con cucina a vista con accesso al terrazzo abitabile, anch’esso libero su due lati. Lo spazio esterno rappresenta un vero valore aggiunto,è presente un angolo lavanderia,un barbecue in muratura e una casetta in legno per il ricovero degli attrezzi.

Un disimpegno separa la zona giorno dalla zona notte, qui troviamo una camera matrimoniale con secondo accesso diretto al retro del terrazzo, una camera singola, un bagno ampio e finestrato con box doccia e un comodo ripostiglio finestrato, ideale come dispensa o spazio multiuso.

L’immobile si presenta in ottime condizioni manutentive ed è dotato di numerosi comfort: zanzariere, persiane in alluminio regolabili, inferriate, aria condizionata nella zona giorno e caldaia a condensazione installata circa due anni fa.

Completano la proprietà un posto auto esclusivo e la possibilità di parcheggio comunale sul retro,utile in presenza di più veicoli o per ospiti. Le spese condominiali ammontano a 40 euro mensili.

Soluzione ideale per coppie, piccoli nuclei familiari o per chi desidera un immobile pratico, ben collegato e con spazi esterni.

Mostra tutto

Nelle vicinanze

Trasporto pubblico Trasporto pubblico
Trasporto pubblico
1,3 Km
Baccheretana 366
Baccheretana 366
2,4 Km
Scuole Scuole
Scuole
1,3 Km
Scuola Media Statale "Bonaccorso da Montemagno"
2,0 Km
Farmacia Farmacia
Farmacia Pharmagroup sas
1,7 Km
Farmacia Chilleri
1,8 Km
Farmacia Sarteschi
2,2 Km
Farmacia
2,6 Km
Farmácia
2,6 Km
Supermercati Supermercati
Coop
1,9 Km
EuroSpin
1,9 Km
Supermercato Coop Seano
2,5 Km
Negozi Negozi
Panificio Giuntini
1,9 Km
Bar Bar
Bar Grazia
2,2 Km
Ristoranti Ristoranti
Ristorante il faro
900 m
Ristoranti
1,3 Km
Tenuta la querciola
1,6 Km
Dal Taglia pizza
1,9 Km
Ristorante i'Prugnolo
2,6 Km
Mostra tutto

Caratteristiche

Rif.:
61170678
Piano:
Terra con giardino di 3
Totale piani:
3
Posti auto:
1
Terrazzi:
1
Camere da letto:
2
Mostra tutto
Prezzo Prezzo
€ 188.000
Rata mutuo Rata mutuo
€ 878 / mese
Spese annue Spese annue
€ 480
Proponi il tuo prezzoProponi il tuo prezzo
Immobile valutato con T·Valuta

Classe Energetica

G
G
G
G
G
G
G
G
G
EP globale non rinnovabile:
115.50 kW h/m² anno
EP globale rinnovabile:
115.50 kW h/m² anno
EP invernale del fabbricato:
EP estiva del fabbricato:
Anno di costruzione:
2005
Riscaldamento:
Autonomo
Tipo impianto:
A radiatori
Tipo alimentazione:
Metano

Prezzo ridotto di €1 (4%%)

Ti interessa visionare l'immobile?

Fissa un appuntamento  Fissa un appuntamento

Richiedi informazioni

Clicca su Leggi per aprire l'informativa
* Questi campi sono obbligatori

Calcola il tuo mutuo

Semplice e senza impegno
Anticipo

( % )
Mutuo

( % )

pochi semplici passi

inserisci i tuoi dati
Questionario completato
Grazie per aver richiesto un appuntamento senza impegno con un nostro Consulente del Credito e Assicurativo.

Hai inserito correttamente tutti i dati necessari e a breve riceverai una e-mail con un link da convalidare per inviare i tuoi dati.
Affiliato
Studio Quarrata Sas
Via Roma, 29 51039 Quarrata (PT)

Il nostro staff


  • Giuseppe Santoro
    Affiliato

  • Maria Carmen Alessia Accorinti
    Collaboratrice

  • Rosaria Cimmino
    Coordinatrice

  • Aldi Gjetdocaj
    Collaboratore

  • Serena Raspanti
    Collaboratrice

  • Chaymae Touil
    Coordinatrice
Via Roma, 29 51039 Quarrata (PT)
Zona: Quarrata
Mostra su mappa
Orari: 09:00 - 13:00 / 15:00 - 20:00
Affiliato
Studio Quarrata Sas
Via Roma, 29 51039 Quarrata (PT)

2026 Tecnocasa Franchising S.p.A. - P. IVA 08365160152 - Via Monte Bianco 60/A 20089 Rozzano (MI). Ogni agenzia ha un proprio titolare ed è autonoma. Privacy policy | Policy utilizzo | Cookie policy