Quadrilocale in vendita

Quarrata, via del casone
€ 259.000
4 locali 4 locali
130 Mq 130 Mq
1 bagno 1 bagno

Quadrilocale in vendita

Quarrata, via del casone

Descrizione annuncio

Via del Casone - Quarrata

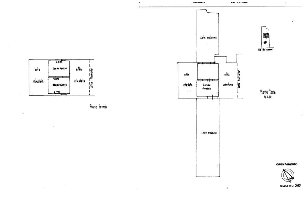
Situata in una zona strategica e ben collegata, proponiamo in vendita casa indipendente composta da quattro locali con doppia resede sia tergale che frontale.

Al piano terra si sviluppa la zona giorno accogliente e spaziosa, composta da una luminosa sala e una cucina attualmente zona openspace, ma con possibilità anche di creare due ambienti separati a seconda dei propri gusti.

Salendo al primo piano, la zona notte offre due ampie camere matrimoniali, ideali per garantire comfort e privacy, oltre a un bagno finestrato con vasca e box doccia, moderno e funzionale.

La proprietà si distingue per la sua indipendenza e la presenza di spazi esterni su due lati paralleli, con una resede frontale e una tergale dotata di accesso carrabile da strada privata e di loggiato di 20mq comodo per vivere momenti all'aperto in totale tranquillità.

L'immobile, in condizioni impeccabili, è pronto per essere abitato senza necessità di ristrutturazioni, è dotato di zanzariere, aria condizionata e impianto d'allarme.

Possibilità di parcheggiare due o più auto sia nel resede frontale sia in quello tergale.

Quest' immobile rappresenta una soluzione ideale per chi cerca indipendenza, spazi vivibili e una posizione comoda senza rinunciare alla qualità e al gusto.

Mostra tutto

Nelle vicinanze

Trasporto pubblico Trasporto pubblico
Trasporto pubblico
3,0 Km
Scuole Scuole
Scuole
1,4 Km
Scuola Media Statale "Bonaccorso da Montemagno"
2,3 Km
Farmacia Farmacia
Farmacia Chilleri
1,5 Km
Farmacia Sarteschi
2,1 Km
Farmacia Pharmagroup sas
2,2 Km
Supermercati Supermercati
Coop
1,2 Km
Pam
1,3 Km
EuroSpin
1,4 Km
Negozi Negozi
melanishop
1,2 Km
Panificio Giuntini
2,2 Km
Bar Bar
Bar Grazia
2,1 Km
Ristoranti Ristoranti
Ristoranti
930 m
Ristorante Pizzeria Pinko
1,2 Km
Dal Taglia pizza
1,5 Km
da Giaomino
1,7 Km
Ristorante Lago Giardino
1,9 Km
Mostra tutto

Caratteristiche

Rif.:
61193330
Piano:
Su più livelli di 2
Totale piani:
2
Posti auto:
2
Camere da letto:
2
Arredamento:
Assente
Mostra tutto
Prezzo Prezzo
€ 259.000
Rata mutuo Rata mutuo
€ 1.221 / mese
Spese annue Spese annue
€ 0
Proponi il tuo prezzoProponi il tuo prezzo

Classe Energetica

G
G
G
G
G
G
G
G
G
EP globale non rinnovabile:
115.50 kW h/m² anno
EP globale rinnovabile:
115.50 kW h/m² anno
EP invernale del fabbricato:
EP estiva del fabbricato:
Anno di costruzione:
1965
Riscaldamento:
Autonomo
Tipo impianto:
A radiatori
Tipo alimentazione:
Metano

Ti interessa visionare l'immobile?

Fissa un appuntamento  Fissa un appuntamento

Richiedi informazioni

Clicca su Leggi per aprire l'informativa
* Questi campi sono obbligatori

Calcola il tuo mutuo

Semplice e senza impegno
Anticipo

( % )
Mutuo

( % )

pochi semplici passi

inserisci i tuoi dati
Questionario completato
Grazie per aver richiesto un appuntamento senza impegno con un nostro Consulente del Credito e Assicurativo.

Hai inserito correttamente tutti i dati necessari e a breve riceverai una e-mail con un link da convalidare per inviare i tuoi dati.
Affiliato
Studio Quarrata Sas
Via Roma, 29 51039 Quarrata (PT)

Il nostro staff


  • Giuseppe Santoro
    Affiliato

  • Maria Carmen Alessia Accorinti
    Collaboratrice

  • Rosaria Cimmino
    Coordinatrice

  • Aldi Gjetdocaj
    Collaboratore

  • Serena Raspanti
    Collaboratrice

  • Chaymae Touil
    Coordinatrice
Via Roma, 29 51039 Quarrata (PT)
Zona: Quarrata
Mostra su mappa
Orari: 09:00 - 13:00 / 15:00 - 20:00
Affiliato
Studio Quarrata Sas
Via Roma, 29 51039 Quarrata (PT)

2026 Tecnocasa Franchising S.p.A. - P. IVA 08365160152 - Via Monte Bianco 60/A 20089 Rozzano (MI). Ogni agenzia ha un proprio titolare ed è autonoma. Privacy policy | Policy utilizzo | Cookie policy