Casa indipendente in vendita

Quarrata, Via baronciatica - Tizzana
€ 340.000
3 locali 3 locali
90 Mq 90 Mq
2 bagni 2 bagni

Casa indipendente in vendita

Quarrata, Via baronciatica - Tizzana

Descrizione annuncio

Via Baronciatica - Tizzana

CONSEGNA PREVISTA DICEMBRE 2027

Nel suggestivo borgo collinare di Tizzana, immerso in un contesto panoramico di rara bellezza con vista mozzafiato sulle colline toscane, proponiamo in vendita un affascinante terratetto inserito in un complesso residenziale di nuova ristrutturazione 2026.

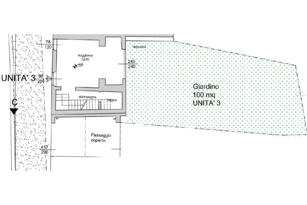
L’abitazione, luminosa e accogliente, si sviluppa su più livelli ed è composta da tre vani ben distribuiti, con una confortevole zona giorno, due camere da letto spaziose e un bagno rifinito con materiali moderni e di qualità.

Gli ambienti, oggetto di un’attenta riqualificazione, coniugano il fascino del borgo storico con soluzioni abitative contemporanee.

A completare la proprietà troviamo un giardino esclusivo, ideale per momenti di relax all’aperto o per piacevoli cene con vista, oltre a un posto auto esclusivo che garantisce praticità e comodità.

La classe energetica A assicura elevati standard di efficienza e ottimo risparmio energetico, offrendo comfort abitativo e attenzione ai consumi.

Una soluzione perfetta per chi desidera vivere nella tranquillità della campagna toscana, in un contesto riservato e panoramico, senza rinunciare alla qualità di una ristrutturazione moderna ed efficiente.

Mostra tutto

Nelle vicinanze

Trasporto pubblico Trasporto pubblico
Trasporto pubblico
2,3 Km
Baccheretana 470
Baccheretana 470
2,4 Km
Scuole Scuole
Scuola Media Statale "Bonaccorso da Montemagno"
660 m
Scuole
760 m
Farmacia Farmacia
Farmacia Pharmagroup sas
480 m
Farmacia Sarteschi
950 m
Farmacia Chilleri
1,2 Km
Farmácia
2,9 Km
Supermercati Supermercati
EuroSpin
1,3 Km
Coop
1,4 Km
Supermercato Coop Seano
2,9 Km
Negozi Negozi
Panificio Giuntini
640 m
Bar Bar
Bar Grazia
950 m
Ristoranti Ristoranti
Ristorante il faro
770 m
Dal Taglia pizza
1,2 Km
Ristoranti
1,9 Km
da Giaomino
2,7 Km
Tenuta la querciola
2,8 Km
Mostra tutto

Caratteristiche

Rif.:
61178485
Piano:
Su più livelli di 2
Totale piani:
2
Posti auto:
1
Camere da letto:
2
Arredamento:
Assente
Mostra tutto
Prezzo Prezzo
€ 340.000
Rata mutuo Rata mutuo
€ 1.615 / mese
Spese annue Spese annue
€ 0
Proponi il tuo prezzoProponi il tuo prezzo

Classe Energetica

A1
A1
A1
A1
A1
A1
A1
A1
A1
EP globale non rinnovabile:
115.50 kW h/m² anno
EP globale rinnovabile:
115.50 kW h/m² anno
EP invernale del fabbricato:
EP estiva del fabbricato:
Anno di costruzione:
2026
Riscaldamento:
Autonomo
Tipo impianto:
A pavimento
Tipo alimentazione:
Pannelli

Ti interessa visionare l'immobile?

Fissa un appuntamento  Fissa un appuntamento

Richiedi informazioni

Clicca su Leggi per aprire l'informativa
* Questi campi sono obbligatori

Calcola il tuo mutuo

Semplice e senza impegno
Anticipo

( % )
Mutuo

( % )

pochi semplici passi

inserisci i tuoi dati
Questionario completato
Grazie per aver richiesto un appuntamento senza impegno con un nostro Consulente del Credito e Assicurativo.

Hai inserito correttamente tutti i dati necessari e a breve riceverai una e-mail con un link da convalidare per inviare i tuoi dati.
Affiliato
Studio Quarrata Sas
Via Roma, 29 51039 Quarrata (PT)

Il nostro staff


  • Giuseppe Santoro
    Affiliato

  • Maria Carmen Alessia Accorinti
    Collaboratrice

  • Rosaria Cimmino
    Coordinatrice

  • Aldi Gjetdocaj
    Collaboratore

  • Serena Raspanti
    Collaboratrice

  • Chaymae Touil
    Coordinatrice
Via Roma, 29 51039 Quarrata (PT)
Zona: Quarrata
Mostra su mappa
Orari: 09:00 - 13:00 / 15:00 - 20:00
Affiliato
Studio Quarrata Sas
Via Roma, 29 51039 Quarrata (PT)

2026 Tecnocasa Franchising S.p.A. - P. IVA 08365160152 - Via Monte Bianco 60/A 20089 Rozzano (MI). Ogni agenzia ha un proprio titolare ed è autonoma. Privacy policy | Policy utilizzo | Cookie policy