Porzione di bifamiliare in vendita

Quarrata, Via Statale - Barba Ferruccia Vignole Casini Catena
€ 270.000
5 locali 5 locali
190 Mq 190 Mq
1 bagno 1 bagno

Porzione di bifamiliare in vendita

Quarrata, Via Statale - Barba Ferruccia Vignole Casini Catena

Descrizione annuncio

Via Statale - Barba

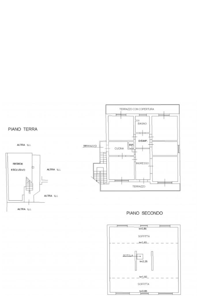
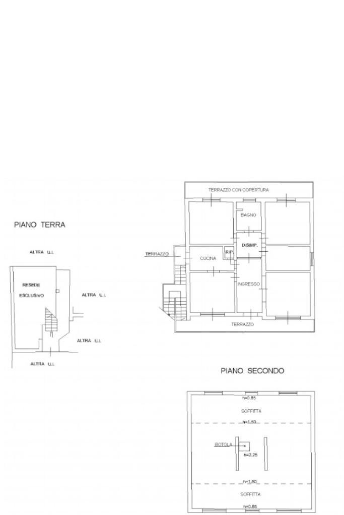
Proponiamo in vendita un ampio appartamento al primo piano inserito in contesto bifamiliare, dotato di ingresso indipendente tramite scala esterna, soluzione ideale per chi cerca spazi comodi e massima autonomia.

L’abitazione si sviluppa su un unico livello e presenta una zona giorno particolarmente generosa, composta da una sala principale con camino a legna, un’ulteriore sala dove è presente una stufa a pellet, e una cucina con angolo cottura. Gli ambienti della zona giorno hanno accesso a un grande balcone, mentre la cucina dispone di un balcone separato con scala esterna, che consente un secondo ingresso oltre a quello principale, rendendo la casa ancora più funzionale.

La zona notte è ben separata ed è composta da due camere da letto matrimoniali e una camera singola. Tutte le camere godono dell’accesso diretto al balcone, caratteristica che garantisce ottima luminosità e sfogo esterno a ogni ambiente.

Il bagno è stato ristrutturato nel 2021, mentre il resto dell’immobile conserva finiture risalenti all’epoca di costruzione. Il tetto ha beneficiato di regolare manutenzione nel corso degli ultimi vent’anni.

A completare la proprietà è presente una soffitta ad uso esclusivo, accessibile tramite botola, le cui altezze interne variano da 0,85 m nei punti più bassi, a 1,50 m nelle parti intermedie, fino a 2,25 m nel punto centrale.

E' presente un resede al piano terra di proprietà esclusiva.

L’immobile è libero da subito e rappresenta una soluzione interessante per famiglie o per chi desidera abitare in un contesto indipendente, senza spese condominiali e con ampie metrature.

Mostra tutto

Nelle vicinanze

Trasporto pubblico Trasporto pubblico
Traversa Delle Caserane Sn
Traversa Delle Caserane Sn
2,8 Km
Magni 118
Magni 118
2,9 Km
Scuole Scuole
Scuole
670 m
Farmacia Farmacia
Farmacia Chilleri
2,9 Km
Supermercati Supermercati
Pam
1,6 Km
Coop
2,7 Km
Conad
2,8 Km
EuroSpin
2,9 Km
Negozi Negozi
melanishop
1,5 Km
Panificio fratelli Mastrella
2,8 Km
Bar Bar
Gallo Nero
3,0 Km
Ristoranti Ristoranti
Ristorante Pizzeria Pinko
1,5 Km
Ristoranti
2,0 Km
Sushi King
2,1 Km
Bierplatz
2,1 Km
Lago Primo Maggio
2,1 Km
Mostra tutto

Caratteristiche

Rif.:
61150626
Piano:
1 di 2 (ultimo Piano)
Balconi:
3
Camere da letto:
3
Arredamento:
Assente
Condizionamento:
Assente
Mostra tutto
Prezzo Prezzo
€ 270.000
Rata mutuo Rata mutuo
€ 1.272 / mese
Spese annue Spese annue
€ 0
Proponi il tuo prezzoProponi il tuo prezzo

Classe Energetica

G
G
G
G
G
G
G
G
G
EP globale non rinnovabile:
115.50 kW h/m² anno
EP globale rinnovabile:
115.50 kW h/m² anno
EP invernale del fabbricato:
EP estiva del fabbricato:
Anno di costruzione:
1962
Riscaldamento:
Autonomo
Tipo impianto:
A radiatori
Tipo alimentazione:
Metano

Ti interessa visionare l'immobile?

Fissa un appuntamento  Fissa un appuntamento

Richiedi informazioni

Clicca su Leggi per aprire l'informativa
* Questi campi sono obbligatori

Calcola il tuo mutuo

Semplice e senza impegno
Anticipo

( % )
Mutuo

( % )

pochi semplici passi

inserisci i tuoi dati
Questionario completato
Grazie per aver richiesto un appuntamento senza impegno con un nostro Consulente del Credito e Assicurativo.

Hai inserito correttamente tutti i dati necessari e a breve riceverai una e-mail con un link da convalidare per inviare i tuoi dati.
Affiliato
Studio Quarrata Sas
Via Roma, 29 51039 Quarrata (PT)

Il nostro staff


  • Giuseppe Santoro
    Affiliato

  • Maria Carmen Alessia Accorinti
    Collaboratrice

  • Rosaria Cimmino
    Coordinatrice

  • Aldi Gjetdocaj
    Collaboratore

  • Chaymae Touil
    Coordinatrice
Via Roma, 29 51039 Quarrata (PT)
Zona: Quarrata
Mostra su mappa
Orari: 09:00 - 13:00 / 15:00 - 20:00
Affiliato
Studio Quarrata Sas
Via Roma, 29 51039 Quarrata (PT)

2026 Tecnocasa Franchising S.p.A. - P. IVA 08365160152 - Via Monte Bianco 60/A 20089 Rozzano (MI). Ogni agenzia ha un proprio titolare ed è autonoma. Privacy policy | Policy utilizzo | Cookie policy