Negozio in vendita

Serravalle Pistoiese, Via provinciale montalbano - Cantagrillo-Casalguidi
€ 99.000
7 locali 7 locali
110 Mq 110 Mq
2 bagni 2 bagni

Negozio in vendita

Serravalle Pistoiese, Via provinciale montalbano - Cantagrillo-Casalguidi

Descrizione annuncio

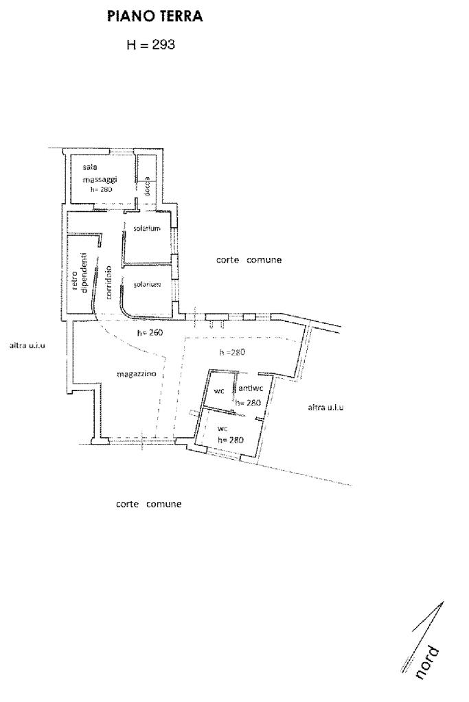
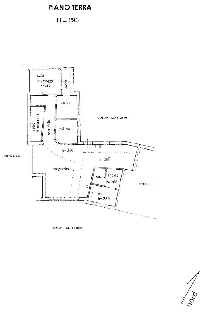
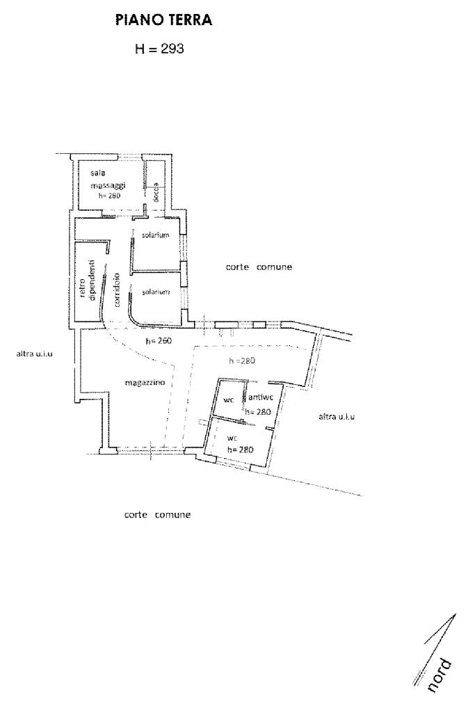
Via Provinciale Montalbano - Casalguidi

Nel cuore di Casalguidi, in una posizione strategica e vicino a tutti i principali servizi, proponiamo in vendita un interessante immobile al piano strada di circa 110mq attualmente adibito a centro estetico. Ideale per chi cerca uno spazio già pronto per attività artigianali, ma anche con la possibilità di trasformarlo in un'accogliente abitazione grazie al cambio di destinazione d'uso in residenziale.

E' presente anche una corte a comune dove è possibile parcheggiare una o più auto. Mentre difronte all'immobile c'è un parcheggio pubblico per i clienti non a pagamento.

Questa proprietà rappresenta un'opportunità versatile, sia per chi desidera continuare l'attività esistente: una cabina area staff, una cabina ufficio, una cabina corpo con lavabo, una cabina con 20kw, una doccia comunicante con due cabine, una cabina con lavabo, 20mq da distribuire a piacimento, due bagni (uno disabili) ed un ampio antibagno; o avviare un nuovo progetto ad esempio uno studio medico, sia per chi è interessato a trasformarla in una soluzione residenziale su misura.

Una proposta interessante che unisce praticità, comfort e una posizione strategica, pronta ad adattarsi proprie esigenze.

Mostra tutto

Nelle vicinanze

Trasporto pubblico Trasporto pubblico
Trasporto pubblico
1,2 Km
Di Ramini, 5
Di Ramini, 5
2,9 Km
Scuole Scuole
Scuole
290 m
Farmacia Farmacia
Farmacia
80 m
Supermercati Supermercati
Conad
110 m
Negozi Negozi
Margherita
2,9 Km
Bar Bar
Girasole
1,2 Km
Bar
1,2 Km
Bar Bottegaccia
1,9 Km
Bidue
2,5 Km
La Margherita
2,7 Km
Ristoranti Ristoranti
Il Grillo
400 m
Ristoranti
500 m
Il Toscano
1,2 Km
La Piramide
1,5 Km
Osteria Amici Miei
2,0 Km
Mostra tutto

Caratteristiche

Rif.:
61167428
Piano:
Terra di 2
Totale piani:
2
Posti auto:
2
Condizionamento:
Autonomo
Ascensore:
No
Mostra tutto
Prezzo Prezzo
€ 99.000
Rata mutuo Rata mutuo
€ 462 / mese
Spese annue Spese annue
€ 0
Proponi il tuo prezzoProponi il tuo prezzo

Altre caratteristiche

Descrizione dei locali
Bagno Con Finestra

Classe Energetica

G
G
G
G
G
G
G
G
G
EP globale non rinnovabile:
115.50 kW h/m² anno
EP globale rinnovabile:
115.50 kW h/m² anno
EP invernale del fabbricato:
EP estiva del fabbricato:
Anno di costruzione:
1970
Riscaldamento:
Autonomo
Tipo impianto:
A radiatori
Tipo alimentazione:
Metano

Ti interessa visionare l'immobile?

Fissa un appuntamento  Fissa un appuntamento

Richiedi informazioni

Clicca su Leggi per aprire l'informativa
* Questi campi sono obbligatori

Calcola il tuo mutuo

Semplice e senza impegno
Anticipo

( % )
Mutuo

( % )

pochi semplici passi

inserisci i tuoi dati
Questionario completato
Grazie per aver richiesto un appuntamento senza impegno con un nostro Consulente del Credito e Assicurativo.

Hai inserito correttamente tutti i dati necessari e a breve riceverai una e-mail con un link da convalidare per inviare i tuoi dati.
Affiliato
Studio Quarrata Sas
Via Roma, 29 51039 Quarrata (PT)

Il nostro staff


  • Giuseppe Santoro
    Affiliato

  • Maria Carmen Alessia Accorinti
    Collaboratrice

  • Rosaria Cimmino
    Coordinatrice

  • Aldi Gjetdocaj
    Collaboratore

  • Serena Raspanti
    Collaboratrice

  • Chaymae Touil
    Coordinatrice
Via Roma, 29 51039 Quarrata (PT)
Zona: Quarrata
Mostra su mappa
Orari: 09:00 - 13:00 / 15:00 - 20:00
Affiliato
Studio Quarrata Sas
Via Roma, 29 51039 Quarrata (PT)

2026 Tecnocasa Franchising S.p.A. - P. IVA 08365160152 - Via Monte Bianco 60/A 20089 Rozzano (MI). Ogni agenzia ha un proprio titolare ed è autonoma. Privacy policy | Policy utilizzo | Cookie policy